INFORMACJA OGÓLNA
Przed podjęciem decyzji o budowie sauny w mieszkaniu należy wyjaśnić kilka aspektów:
• Czy jest wystarczająco dużo miejsca na saunę (minimalna jej powierzchnia to około 1,6x1,6m)
• Czy umiejscowienie sauny będzie odpowiednie względem innych pomieszczeń, zalecane jest, by z sauny było wyście na zewnątrz albo na balkon;
• Czy jest możliwość zamontowania w saunie dobrej wentylacji (dodatkowe powietrze musi napływać bezpośrednio z zewnątrz, a powietrze wychodzące musi być skierowane do kanałów wentylacyjnych);
• Czy natężenie prądu elektrycznego jest wystarczające, by podłączyć elektryczny piecyk;
• Czy inni mieszkańcy nie będą mieli nic przeciw.
PROJEKTOWANIE
Pozwolenie na budowę
Aby przygotować pomieszczenie na saunę w mieszkaniu początkowo należy uzyskać odpowiednie pozwolenia ze strony spółdzielni lub wspólnoty mieszkaniowej. Koszty takich pozwoleń i innych formalności związanych ze zmianami w mieszkaniu pokrywa właściciel mieszkania. Często w celu uniknięcia możliwych zniszczeń spowodowanych wilgocią należy zawczasu poinformować spółdzielnię o remoncie czy przebudowie pomieszczeń o dużej wilgotności. Pozwolenia nie są potrzebne w przypadku zainstalowania w łazience gotowej mini sauny.
Potrzebne wykresy i projekty
Dobrze i dokładnie przemyślany projekt sauny zapewni dobry efekt końcowy i pozwoli później na przyjemny relaks. Zalecamy do skorzystania z usług i zasięgania porad u profesjonalnych projektantów. Jeżeli jest potrzeba przebudowania ściany nośnej, zwracać się należy do architektów. Przy większych zmianach są też potrzebne projekty na instalację wodną, kanalizacyjną i elektryczną. Często wnioskiem o pozwolenie na budowę i z nim związanymi planami, projektami i wykresami zajmuje się główny projektant; zazwyczaj jest to architekt. Podstawowy wykres składa się z planu rozmieszczenia, przekroju i głównego projektu. Poza tym możliwe, że będzie potrzebny projekt architektoniczny, instalacji wodnej, kanalizacyjnej i elektrycznej, które robią odpowiedni projektanci. Budując saunę poza wymienionymi projektami należy zrobić jeszcze wykres roboczy z wymiarami oraz, jeżeli jest taka potrzeba, inne pomocnicze wykresy.
Miejsce i wielkość
Należy dobrze przemyśleć, gdzie będzie sauna, jakiej wielkości i kształtu. Wejście do sauny zawsze jest od strony łazienki. Zaleca się, by w danej łazience nie było muszli klozetowej. Toaleta powinna być osobno i w miarę blisko łazienki. Przemyśleć też trzeba, gdzie będzie miejsce na ochłonięcie i przebranie się. Najlepszym rozwiązaniem jest osobne pomieszczenie do przebierania się wraz z wyjściem na balkon albo na zewnątrz. Jeżeli nie ma możliwości zrobienia sauny w pomieszczeniu łazienki, trzeba zaprojektować i wybudować nowe pomieszczenie łazienkowe z instalacją elektryczną, grzewczą, wodną i kanalizacyjną.
W danym artykule natomiast nie będzie omawiane budowanie nowej łazienki. Pod względem systemu wentylacyjnego zaleca się budować saunę przy zewnętrznej ścianie. Wtedy jest możliwość wpuszczenia dodatkowego świeżego powietrza z zewnątrz przez kanał wentylacyjny albo wstawione okno. Aby wstawić okno, konieczne jest uzyskanie pozwolenia na budowę.
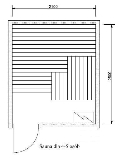
Najmniejsza urządzona sauna w mieszkaniu powinna mieć około 2,5 m² (1,6x1,6 m), rodzina natomiast potrzebuje sauny o powierzchni około 4 m². Na większą saunę w mieszkaniu zazwyczaj nie ma wystarczająco dużo miejsca. Na ławy w saunie potrzeba co najmniej 1,6 m długości wolnej przestrzeni. Zazwyczaj wysokość sauny określa wysokość pomieszczenia łazienki, natomiast dobra sauna powinna być wysoka na 2,1-2,3 metra.
Przykładowe wymiary sauny i kształty ław.



Zalecana wysokość sauny to 2100-2300 mm.
Odstęp ławy od sufitu powinien wynosić 1000-1200 mm.
KONSTRUKCJA I IZOLACJA
Projektując saunę poza termoizolacją należy jeszcze zwrócić szczególna uwagę na hydroizolację. Projektować i urządzać ją trzeba bardzo dokładnie, używając przy tym specjalnie do tego przeznaczonych materiałów. Prace związane z hydroizolacja musi wykonywać odpowiednio do tego przeszkolony budowlaniec.
Hydroizolacja
Na powierzchnie ścian i sufitu, w celu zabezpieczenia przed wilgocią, nakłada się dwie warstwy specjalnie do tego przeznaczonego materiału. Izolację przeciwwilgociową podłogi wykonuje się z samoprzylepnej membrany bitumicznej albo z certyfikowanej hydroizolacyjnej masy uszczelniającej. Druga warstwa hydroizolacji to siatka z włókna szklanego, zamiast niej można użyć hydroizolacyjnej papy zawierającej szklane włókna. Szczególnie dokładnie należy wypełnić rogi, trzeba je pokryć tą masą trzykrotnie. Hydroizolacja podłogi kończy się na ścianie, co najmniej na wysokości 150 mm od powierzchni gotowej podłogi. Jeżeli w pomieszczeniu sauny jest zrobiony specjalnie rowek, którym ścieka woda, ważne, by i on był pokryty odpowiednią warstwa hydroizolacyjną. Jeżeli w podłodze sauny nie ma takiego rowka, podłoga musi być zrobiona z lekkim spadem, by woda mogła ściekać przez szczelinę pod drzwiami do łazienki. W niektórych spółdzielniach przed przystąpieniem do kolejnego etapu remontu istnieje wymóg zgłoszenia ukończonego etapu pracy związanego z hydroizolacją.
Termoizolacja
Zewnętrzne ściany sauny powinny być ocieplone co najmniej 50 mm grubością wełny mineralnej. Wewnętrzną ścianę przegrodową, w razie potrzeby, też należy pokryć materiałem izolacyjnym. Ze względu na to, że ciepło unosi się do góry, sufit powinien być ocieplony grubszą warstwa izolacyjną o grubości min.100 mm. Jeżeli jest taka możliwość, to najlepiej jest, by sufitowa warstwa izolacyjna wynosiła 150 mm.
Podłoga
Starą nawierzchnię podłogi należy usunąć oraz upewnić się, czy stara wylewka betonowa albo innego rodzaju podłoże nie jest uszkodzone.
Struktura podłogi:
• Stara konstrukcja podłogi
• Folia plastikowa (zapobiega wilgoci z warstwy betonowej)
• Pochyła warstwa betonu o grubości 50-90 mm (siatka zbrojeniowa i kable do ogrzewania podłogowego), zalecany skos 1:80 (minimum 1:100)
• hydroizolacja;
• Klej
• Płytki ceramiczne
(Patrz: Wykres Konstrukcja ścian, sufitu i podłogi w saunie) W ocieplonym budynku nie ma potrzeby dodatkowego ocieplania podłogi. Przed układaniem warstwy hydroizolacyjnej na podłodze należy upewnić się, czy wylewka betonowa jest wystarczająco sucha. Suszenie betonu można przyspieszyć używając zaprawy szybko twardniejącej. Betonowa powierzchnia musi być bardzo dobrze wyrównana.
Ściana
Jeżeli ściana jest obita płytami wiórowymi albo drewnianymi, należy je zastąpić płytami z karton-gipsu albo cementu i pokryć warstwą hydroizolacyjną.
Konstrukcja ściany:
• Stara ściana;
• Hydroizolacja (preparat do nakładania albo malowania)
• Konstrukcja 50x50 mm, w odstępach co 600 mm;
• Termoizolacja 50 mm;
• Folia aluminiowa;
• Przestrzeń wentylacyjna, wykonana od dołu do góry przy użyciu płyt o grubości 22mm;
• Poziome obicie, grubość desek co najmniej 15 mm, (dolnej deski krawędź wykończona skośnym ścięciem z nachyleniem na zewnątrz). Sprawdzić należy czy ta przestrzeń wentylacyjna jest przewiewna tak samo w górze jak i w dole.
Schemat konstrukcji ściany.

Konstrukcja ścian (płatwie) w miejscach zawieszenia piecyka i montażu ław wzmocniona jest deskami albo sklejką. W razie potrzeby płatwie w tym miejscu mogą być zamontowane gęściej. Elektryczny piecyk można zamontować też i na drewnianej ścianie, pod warunkiem dokładnego przestrzegania warunków i sposobu montowania w instrukcji. Sprawdzić należy odstęp piecyka od ław i innych drewnianych elementów.
Sufit
Jeżeli sufit obity jest płytami wiórowymi albo drewnianymi, należy je zastąpić płytami z karton-gipsu albo cementu i pokryć warstwą hydroizolacyjną.
Konstrukcja sufitu:
• Stary sufit;
• Hydroizolacja (preparat do nakładania albo malowania);
• Przestrzeń powietrzna wentylowana;
• Belki - 100-150x50 mm, odstęp między nimi 600 mm;
• Termoizolacja 100-150 mm (jeżeli brak miejsca, wystarczą belki o wysokości 100 mm i 100 mm - termoizolacji);
• Folia aluminiowa;
• Kanał wentylacyjny ciągnie się przez całą długość prostopadle do obicia z 22 mm desek;
• Płyta o grubości co najmniej 15 mm.
Należy się upewnić, że kanał wentylacyjny na całej długości jest przewiewny. W miejscu łączenia obicia ścian i sufitu w celu lepszej cyrkulacji powietrza należy zostawić 5-10mm odstępy. Jeżeli w konstrukcji między sufitem a warstwą izolacyjna jest przestrzeń, należy ją wentylować przez sąsiednie pomieszczenie (np. łazienka albo przedsionek do sauny).
Konstrukcja sufitu, ściany i podłogi w saunie.

Ściana między sauną a łazienką
Konstrukcja podłogi - patrz wcześniejszy wykres.

Drewno używane do wykończenia sauny
Na boazerię do sauny nadają się świerkowe deski. Najlepsze są deski z drzew o małym rozgałęzieniu, gdyż w miejscach gałęzi wydziela się żywica i jest to podstawową wadą świerkowych desek. Nie należy też używać zbyt cienkich czy zbyt grubych desek, gdyż w saunie drewno poddawane jest rozciąganiu w skutek czego może pękać albo wyginać się. Grubość drewnianych listew powinna wynosić co najmniej 15mm, zalecana jest natomiast - 18 mm. Drewnianych powierzchni wykończeniowych w saunie nie wolno ani malować ani lakierować. Za każdym razem po skorzystaniu z sauny należy powierzchnię oczyścić i osuszyć.
DODATKOWE ELEMENTY KONSTRUKCYJNE
Drzwi
Najlepiej używać gotowych drzwi do sauny, które mogą być z jednolitej płyty, z okienkiem albo całe szklane. Szkło w drzwiach musi być hartowane. Drzwi i ościeżnica w saunie powinny być osadzane około 100 mm wyżej od powierzchni podłogi, progu nie robi się. Szczelina pod drzwiami potrzebna jest w celu wentylacji.
Okno
Okno poprawia wentylację w saunie i zapewnia większy komfort. Okna montowane w mieszkaniach mogą być też montowane w saunie, nie ma większych wymogów co do ich właściwości. Tak samo dokładnie trzeba przygotować otwór na okno i ostatecznie dobrze wykończyć, by przedostająca się wilgoć nie zaszkodziła pomieszczeniu. Nośne konstrukcje zewnętrznych ścian i ściany fasadowe mogą ograniczyć wybór miejsca na okno, poza tym przy wstawieniu okna w ścianie fasadowej potrzebne będzie pozwolenie na jego montaż.
WYPOSAŻENIE
Ławy i przegrody
Planując miejsce piecyka i ław należy zachować bezpieczną odległość między nimi. Piecyk należy zamontować tak, by wchodząc na ławę nikt się nie poparzył. Jeżeli same poręcze przy ławach nie wystarczą, należy dodatkowo „ogrodzić" sam piecyk.

Ławy są przymocowywane za pomocą stalowych kątowników, są one mocowane przez boazerię do konstrukcji ściany. Miejsca, w których są mocowane ławy, należy zawczasu zaplanować przy robieniu zbrojeń ścian.

Zasada robienia stopni.
Deski z brzegu mocować należy na odległości 4 mm od szkieletu używając na przykład sklejki. W małej saunie zmieszczą się dwu - lub trzy schodowe ławy. Najprostszym rozwiązaniem jest ława prosta, w dużych natomiast saunach można zrobić ławę w kształcie litery L, U albo II. Kształt ławy musi być taki, by zapewniał wygodne sprzątanie pod nią.
Szkielet, który jest nośną konstrukcją ław, może być robiony ze świerkowego albo sosnowego drewna. Wielkość szkieletu określa się według wielkości ław, zazwyczaj przekrój materiału, z którego jest szkielet ma wymiary 45x120-145 mm. Ławy, oparcia, poręcze i podnóżki robione są z desek drzewa o małej ilości gałęzi, z zaokrąglonymi krawędziami i oheblowane. Najlepszym materiałem na ławy jest osika, nadaje się też olcha oraz różne gatunki drzew tropikalnych.

Zasada wykonania ław
Belki podtrzymujące ławy mocowane są do konstrukcji ściany przy pomocy kątowników. Wszystkie mocowania są robione pod spodem, tak by nie były widoczne. Jeżeli miejsca mocowań są na wierzchu, należy je zasłonić drewnianymi korkami.

Zasada mocowania barierek (poręczy)
Mocowania muszą być schowane. Jeżeli miejsca mocowań są na wierzchu, zaleca się je zasłonić drewnianymi korkami.
WENTYLACJA
Bardzo ważnym jest prawidłowo zaprojektowana wentylacja, gdyż dzięki niej:
• Powietrze w pomieszczeniu sauny będzie wystarczająco nasycone tlenem;
• Para będzie lepszej jakości;
• Budowlane konstrukcje będą bardziej wytrzymałe na wilgotność w pomieszczeniu.
Projektując system wentylacyjny w saunie zaleca się zasięgnąć porady u specjalistów z tej dziedziny. Jeżeli w pomieszczeniu łazienki jest wentylacja wymuszona, montowanie wentylacji w saunie należy omówić ze specjalistą.
Wlot powietrza
W celu równomiernego rozprowadzenia powietrza w saunie para i napływające powietrze muszą poruszać się w odpowiednim kierunku. Świeże powietrze musi napływać z zewnątrz, najlepiej przez wlot umiejscowiony co najmniej 500 mm nad piecem albo od sufitu. W taki sposób unika się przeciągów i przepływu zimnego powietrza w kierunku podłogi. Jeżeli kanał zimnego powietrza biegnie poprzez inne pomieszczenia, należy go ocieplić. Zimne napływające powietrze nie może być skierowane ku dolnej części pieca, gdyż pod nim znajduje się termostat i w razie przegrzania się pieca ryzyko pożaru znacznie wzrasta.
Wyciąg
Powietrze w pomieszczeniu sauny powinno wychodzić kratką wentylacyjną, umiejscowioną w dolnej części ściany, na przeciw piecyka. Jest to najlepsze z możliwych rozwiązań, jednocześnie zapewniające komfortowe przebywanie w saunie. Ponadto, jeżeli w saunie nie ma okna, dzięki któremu można przewietrzyć saunę po jej użyciu, potrzebna jest tradycyjna kratka wentylacyjna pod sufitem. Przy takim rozwiązaniu powietrze wychodzi poprzez kanał wentylacyjny. Jeżeli nie ma możliwości zamontowania takiego osobnego systemu wentylacyjnego, należy poradzić się specjalistów, czy można połączyć kanał wentylacyjny sauny z łazienkowym kanałem wentylacyjnym.

Wentylacja grawitacyjna
Przy późniejszym wietrzeniu i suszeniu pomieszczenia używa się górnej zasuwy. Zasuwa do regulacji ciągu powietrza montowana jest nad piecykiem.
PALENIE W PIECU
Jeżeli piec w saunie nie jest podłączony do centralnego ogrzewania i nie kumuluje ciepła z innych źródeł, należy saunę wyposażyć w jakieś dodatkowe urządzenie grzewcze. Konstrukcja sauny nie jest odporna na gnicie i pleśń, dlatego w tym pomieszczeniu należy szczególnie dbać o suchość. Grzejnik zazwyczaj jest montowany tuż pod oknem albo pod ławą. Zaleca się w pomieszczeniu sauny zamontować ogrzewanie podłogowe, zwłaszcza, gdy podłoga jest wyłożona płytkami ceramicznymi. Jeżeli natomiast pomieszczenie sauny nie przylega do zewnętrznych ścian a ogrzewanie podłogowe jest wystarczające, nie ma potrzeby montowania dodatkowego urządzenia grzewczego.
PRACE ELEKTRYCZNE
Gotowe do zamontowania w mieszkaniu sauny mają piecyki elektryczne. Prace elektryczne w saunie mogą być wykonywane tylko przez elektryków, mających do tego uprawnienia. W mieszkaniu, gdzie będzie sauna, w skrzynce z bezpiecznikami należy dodać dodatkowy bezpiecznik przed przegrzaniem.
Piecyk
Piecyk należy dobierać odpowiednio do wielkości powierzchni pomieszczenia. Należy zwrócić uwagę na to, by włącznik i regulator piecyka były umiejscowione tak, by wygodnie i bezpiecznie można było ich używać w momencie, gdy piec jest nagrzany. Należy też przestrzegać instrukcji montażu i zasad bezpieczeństwa wskazanych przez producenta.
Oświetlenie
W pomieszczeniu sauny stosuje się odpowiednie oświetlenie, które jest montowane poniżej poziomu siedzenia. Należy pamiętać, że jest zabronione montowanie włącznika do światła w pomieszczeniu sauny. Zatroszczyć się należy też o to, by światło za bardzo nie raziło oczu. Specjalne lampki do sauny są zazwyczaj przysłonięte drewniana kratką, która ukierunkowuje światło do dołu albo do góry, by nie świeciło prosto w oczy. Jeżeli drzwi do sauny są szklane albo są zrobione czesiowo ze szkła, oświetlenia w saunie może nie być. Chcąc zamontować oświetlenie z włókna optycznego, należy znaleźć dla niego odpowiednie miejsce.
Przygotowano na podstawie materiałów firmy UAB PUUMERKKI