Projekt domu jednorodzinnego AJOČIS
Firma: ARCH DIVIZIJA, UAB
Konstitucijos pr. 12
+370-699-92077
http://www.archdivizija.lt
*Būsite nukreipti į mūsų partnerio tinklapį tolimesniam pirkimui
Trumpas aprašymas
AJOČIS
Numer projektu KS0027
Architekt Kazys Strazdas

Powierzchnia całkowita 248.90m2
Powierzchnia użytkowa 121.90m2
Powierzchnia zabudowy 247.00m2
Powierzchnia parteru 152.60m2
Powierzchnia pietra 96.30m2
Garaż 38.00m2
Długość budynku 18.22m
Szerokość budynku 14.17m
Ilość pięter 1
Dach spadzisty
Kąt nachylenia dachu 10 - 15 stopni
Wysokość budynku 8.60
Powierzchnia tarasu 47.30m2
Powierzchnia balkonów 42.70m2
Parter
1. Wiatrołap 3.00m2
2. Hol 20.70m2
3. Schody 7.20m2
4. Wc- prysznic 4.50m2
5. Kotłownia- pralnia 7.40m2
6. Kuchnia 10.20m2
7. Jadalnia 12.00m2
8. Salon 29.20m2
9. Gabinet do pracy 20.40m2
10.Garaż 38.00m2
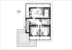
Pierwsze piętro
1. Hola-korytarz 14.20m2
2. Sypialnia 23.90m2
3. Garderoba 12.00m2
4. Łazienka 9.80m2
5. Pokój dziecięcy 18.20m2
6. Pokój dziecięcy 18.20m2